 
                No 6 Bellevarde
Sleeps 12
- Ski in Ski out
- Outdoor Hot Tub
- Swimming Pool (shared)
- Sauna (shared)
Chalet Inuit is a standalone luxury chalet sleeping up to 10-12 guests in Val d’Isere. For those looking for a private location, the chalet is discreetly tucked away into the side of the mountain on the edge of a forest. The setting allows you to enjoy wonderful views of the snow-covered mountain peaks across the valley. The interior is full of lots of wood panelling and sheepskins, creating the perfect ambiance for those looking for a traditional mountain retreat.
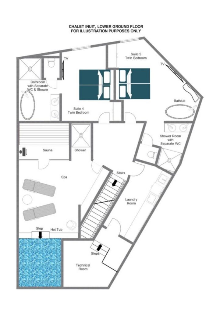
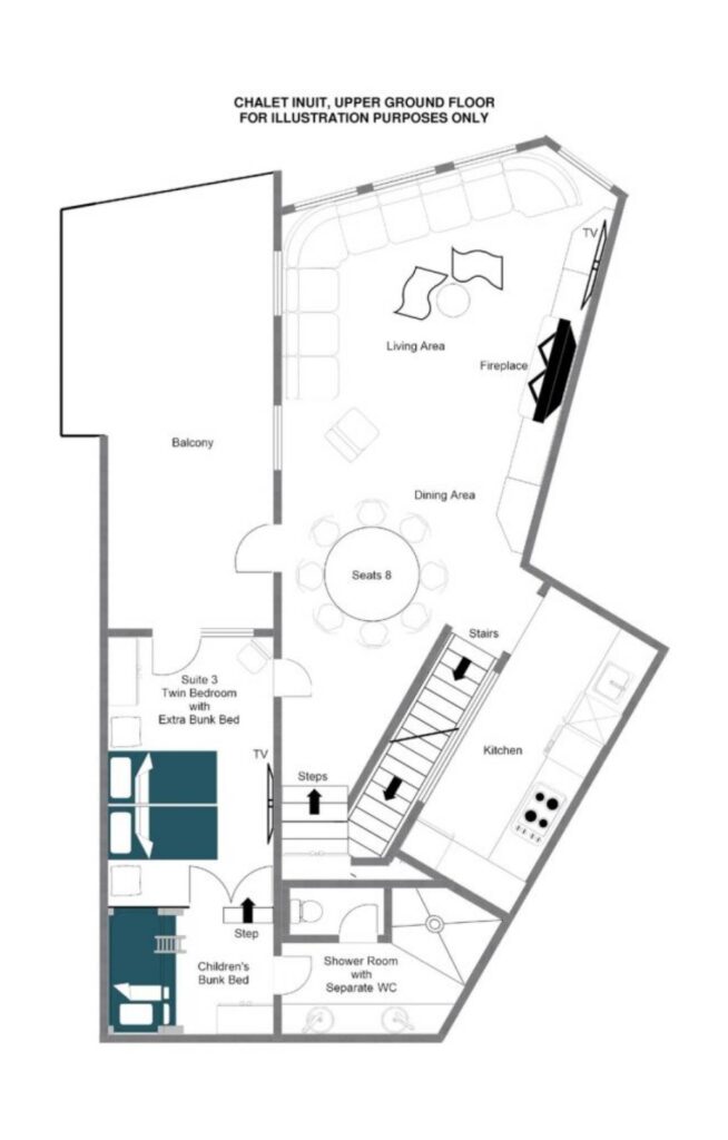
The chalet is arranged over four floors and 220m2 of living space. The open plan living spaces feature a central wood burning fireplace and large windows that frame the view of the mountains. Relax fireside on the bespoke corner sofa before enjoying dinner at the round marble dining table that seats eight guests comfortably. The kitchen is tucked away behind the staircase giving it a private feel but ensuring the cook in your group can still be part of the action.
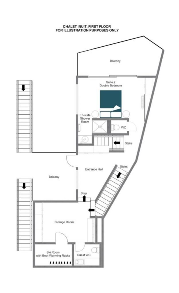
The five guest bedrooms are spread between the chalets four floors, and the layout gives good flexibility for different group configurations. Down on the lower ground floor is your private spa area with large sunken hot tub, spacious sauna and relaxation area where you can recline and unwind and enjoy some “me time”.
For your ski equipment there is a ski room with boot warmers as well as a convenient laundry room, which is especially appreciated by family groups.
Chalet Inuit is available to rent on a self-catered basis with daily minibus transfers to/from the ski slopes, or on a contactless catered basis – please enquire for full details plus latest availability and pricing.
For those driving to resort it is recommended to have a 4×4, and/or snow chains to access the chalet with a vehicle.
Double bed with TV, en-suite shower room and shared separate WC.
Double bed with balcony, TV, en-suite shower room and shared separate WC.
Family suite with twin beds, children’s bunk bed, TV, balcony and en-suite shower room.
Twin bed with TV, en-suite bath and shower room.
Twin bed with TV, en-suite bath and shower room.
220m2
| Nov 2025 | Sun 30 Nov SOLD | ||||
|---|---|---|---|---|---|
| Dec 2025 | Sun 07 Dec SOLD | Sun 14 Dec £15,149 | Sun 21 Dec SOLD | Sun 28 Dec SOLD | |
| Jan 2026 | Sun 04 Jan SOLD | Sun 11 Jan SOLD | Sun 18 Jan £14,298 | Sun 25 Jan SOLD | |
| Feb 2026 | Sun 01 Feb SOLD | Sun 08 Feb £16,399 | Sun 15 Feb SOLD | Sun 22 Feb SOLD | |
| Mar 2026 | Sun 01 Mar SOLD | Sun 08 Mar SOLD | Sun 15 Mar £14,799 | Sun 22 Mar £12,799 | Sun 29 Mar SOLD | 
| Apr 2026 | Sun 05 Apr £13,399 | Sun 12 Apr £11,799 | Sun 19 Apr £9,949 | 
* This property will be charged in "British Pounds".
* This property will be charged in "British Pounds".
Share this Chalet with others, or save to your Chalet Wishlist