
Chalet Cedrene
Sleeps 14
- Central location
- Two living rooms
- South facing terrace
- Mountain views
Chalet Vicuna is a stand-alone luxury chalet in Verbier with extensive spa and entertainment facilities. This opulent chalet will impress you from the minute you are welcomed into the magnificent living area. Vaulted ceilings, huge picture windows and dramatic lighting all add to the grandiose atmosphere of this luxurious Swiss holiday home.
The chalet is spread across four floors and an impressive 875m2 of floor area. The open plan living spaces are arranged across the first floor and feature wooded floors, carefully chosen artworks and deep sofas and armchairs. The living room, with feature fireplace, flows into the dining area with large oak table and mountain views as a backdrop.
To the other side of the lounge area is the kitchen which is divided into two sections: one for relaxed breakfasts or evening drinks around a large kitchen island, and another that can be closed off for a private chef to work away and not disturb you and your guests.
Sleeping up to 12 guests there are six en-suite bedrooms. Stepping up one level and on the top floor is the master bedroom with a gas fireplace, and open layout with lounge area as well as a private balcony, dressing room, and en-suite with bath plus Hammam shower. There is also another double bedroom tucked away on this floor also with a private balcony.
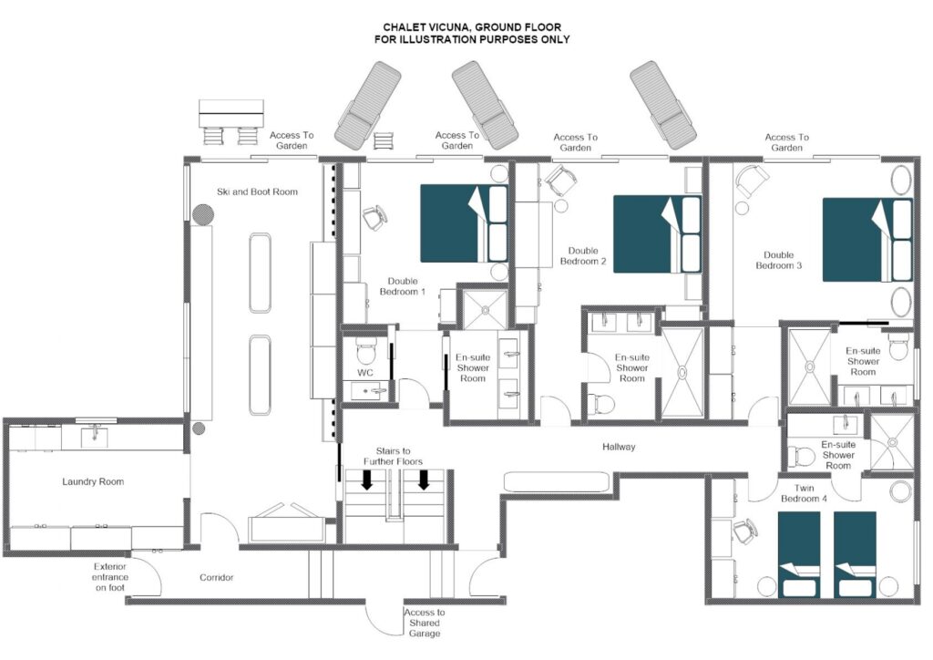
Heading down to the ground floor and this is where the remaining four en-suite bedrooms are arranged. There are three spacious double and one twin bedroom all with terrace access. The bathrooms feature elegant white marble tiles complimented by stylish copper details. Also on this floor is the main entrance via the garage, along with the dedicated ski room, plus a laundry room.
The lowest floor of the chalet is dedicated to relaxation, entertainment and fun. The spa is surely the highlight of the chalet with an indoor swimming pool with an integrated hot tub, a cold plunge pool, and warming sauna and hammam. Adjacent to the spa is a well-equipped gym, and for those looking for a massage or wellness treatment there is also a dedicated private treatment room.
Walking through to the entertainment spaces and the cinema room is decked out with soft wrap-around sofas and is perfect for immersive movie nights. From here you can wander through to a stylish bar with seating and wine cave, and where you can indulge in a bottle of your favourite vintage, spirit or cocktail.
Located on the Chemin des Esserts, the chalet occupies an elevated setting above Verbier and affords panoramic views across the resort. The nearest ski lift is at Savoleyres which is a 3-minute drive away, whilst the main lift hub at Medran is a 7-minute drive. The bottom of the Le Rouge piste with its famed après ski venue of the same name is a 5-minute drive, whilst the resort centre of Place Centrale is a 5-minute drive away.
Chalet Vicuna is rented on a self-catered or fully staffed basis and guests will be looked after by a team of highly trained professionals, each selected for excellence in their field, attention to detail and discretion. Food and alcohol / drink costs is an additional charge, plus TVA.
Double bed, terrace access and en-suite shower room.
Double bed, terrace access and en-suite shower room.
Double bed, terrace access and en-suite shower room.
Twin beds and en-suite shower room.
Master double bed, gas fireplace, dressing room, private south-facing balcony, en-suite bathroom, separate hammam shower & WC.
Double bed and en-suite bathroom.
875m2
Dec 2025 | Sun 07 Dec CHF102,640 | Sun 14 Dec CHF102,640 | Sun 21 Dec SOLD | Sun 28 Dec SOLD | |
---|---|---|---|---|---|
Jan 2026 | Sun 04 Jan CHF129,900 | Sun 11 Jan CHF102,640 | Sun 18 Jan CHF102,640 | Sun 25 Jan SOLD | |
Feb 2026 | Sun 01 Feb SOLD | Sun 08 Feb SOLD | Sun 15 Feb SOLD | Sun 22 Feb SOLD | |
Mar 2026 | Sun 01 Mar SOLD | Sun 08 Mar SOLD | Sun 15 Mar CHF102,640 | Sun 22 Mar CHF102,640 | Sun 29 Mar CHF102,640 |
Apr 2026 | Sun 05 Apr CHF102,640 | Sun 12 Apr CHF102,640 | Sun 19 Apr CHF102,640 |
* This property will be charged in "Swiss Francs".
* This property will be charged in "Swiss Francs".
Share this Chalet with others, or save to your Chalet Wishlist