
Brunnenhof 9
Sleeps 6+2
- Swimming Pool (shared)
- Sauna (shared)
- Steam Room / Hammam (shared)
- Balconies
Completed for the 2019/20 winter ski season, The Brunnenhof residence is an exciting addition to our portfolio of luxury properties in Lech. The building has been fully renovated and incorporates 14 individual and stylish apartments. The residence also includes a shared and well-equipped spa facility which includes an indoor swimming pool with relaxation area, sauna, hammam and treatment room.
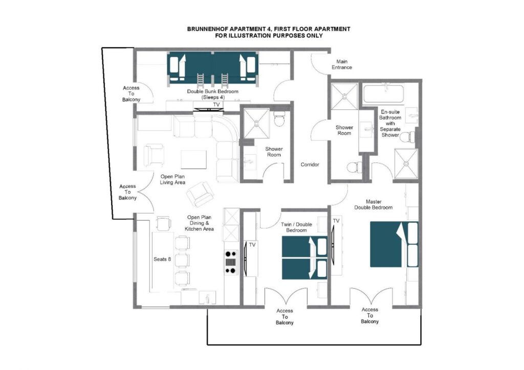
The Brunnenhof 4 apartment is located on the first floor and offers 97m2 of living space. The property has been decorated in calm and muted tones complemented with rich textures and a tasteful selection of old photographs that pay homage to the history of skiing in the local Arlberg region. The open plan living, dining and kitchen is perfect for social evenings around the dinner table or relaxing on the sofa.
The living area is decked out with a large corner sofa and there is an electric fire, adding to the cosy ambiance. The wide dining table comfortably seats eight guests, with banquet seating along two sides perfect for children. The open modern kitchen is finished in dark greys and is complete with all the equipment needed for memorable self-catered ski holiday.
Sleeping 4 adults and 4 children, the apartment is perfect for a couple of families. The elegant master bedroom features and en-suite bathroom with separate shower room. The second bedroom can be arranged with a twin or double bed and features a separate shower room. The final bedroom is a cosy quad bunk room perfect for up to four children. This room also has its own separate shower room. All three bedrooms feature wall mounted TVs and have balcony access.
To access the skiing of this snow-sure ski area, the Schlosskopf chairlift is just a 6 minute walk away. The centre of Lech, along with its glamorous social and restaurant scene, is also just a 10 minute walk from the residence. For groups and families not looking to compromise on location or quality, along with the benefit of spa facilities, the Brunnenhof is a property that ticks all the holiday boxes.
Brunnenhof 4 can be rented on an accommodation only, self-catered and bed & breakfast basis – please enquire for further details and pricing options.
Dec 2025 | Sun 07 Dec €7,440 | Sun 14 Dec €8,010 | Sun 21 Dec SOLD | Sun 28 Dec SOLD | |
---|---|---|---|---|---|
Jan 2026 | Sun 04 Jan €8,770 | Sun 11 Jan €8,770 | Sun 18 Jan €8,770 | Sun 25 Jan €8,770 | |
Feb 2026 | Sun 01 Feb €8,770 | Sun 08 Feb €8,970 | Sun 15 Feb SOLD | Sun 22 Feb POA | |
Mar 2026 | Sun 01 Mar POA | Sun 08 Mar SOLD | Sun 15 Mar €8,970 | Sun 22 Mar €8,970 | Sun 29 Mar €8,970 |
Apr 2026 | Sun 05 Apr €7,440 | Sun 12 Apr €7,440 | Sun 19 Apr €7,440 |
* This property will be charged in "Euros".
* This property will be charged in "Euros".
Share this Chalet with others, or save to your Chalet Wishlist